SPECIALIZED STRUCTURAL ENGINEERING SOLUTIONS

We deliver optimized structural designs, precise fabrication drawings, and accurate material takeoffs to ensure project success.
OUR EXPERTISE

END-TO-END STRUCTURAL ENGINEERING SOLUTIONS

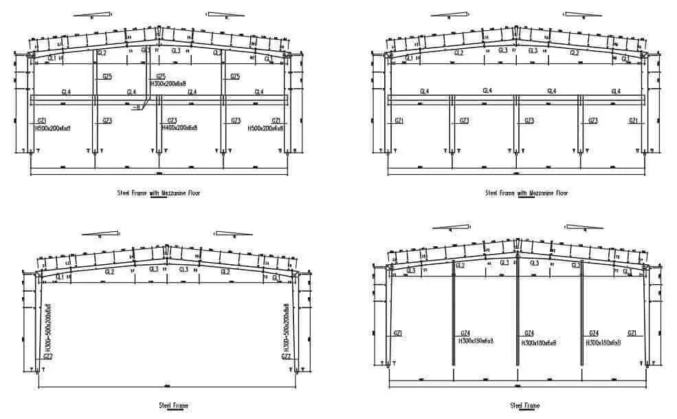
STRUCTURAL STEEL DESIGN

Safe and optimized structural designs developed in compliance with international codes and project requirements.

Fabrication & Assembly Drawings

Detailed shop and assembly drawings that ensure precise fabrication and smooth on-site installation.

CONNECTION DESIGN

Engineered steel connections designed for strength, safety, and constructability.

MATERIAL TAKEOFF (MTO)

Accurate material quantification to support procurement, cost control, and project planning.